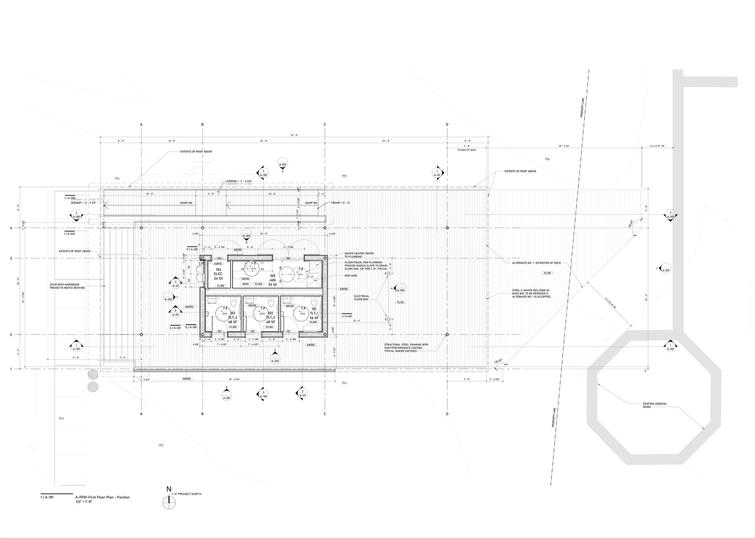
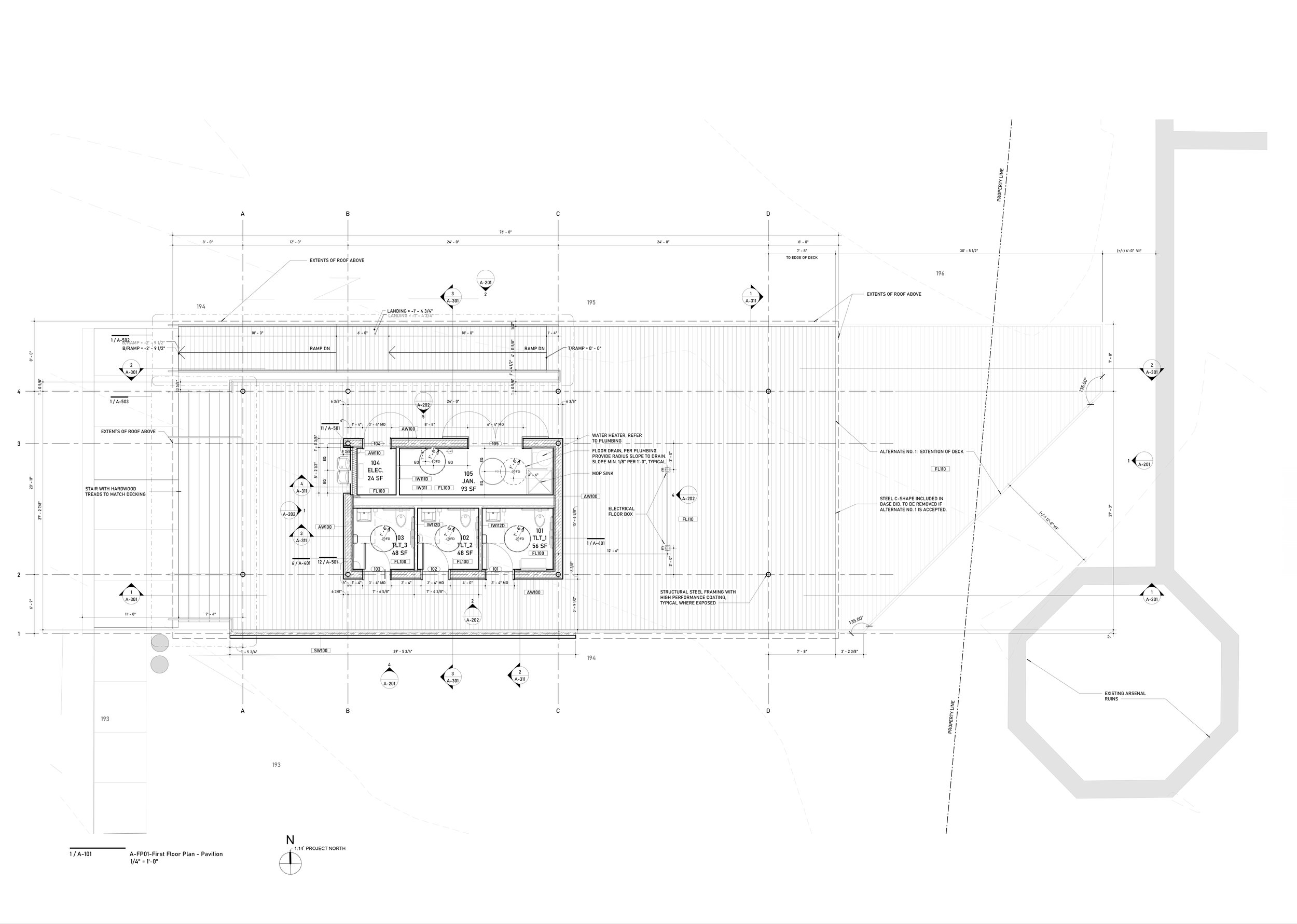
Outdoor Classroom

NC History Center- Fayetteville, NC

Role: Design Principal | Design Lead

Firm: Vines Architecture

Client: NCHC on the Civil War, Reconstruction and Emancipation

Pavilion

Previous
Previous

4 Square House

Next
Next

NC History Center + Museum